



Stavebné Puzdro JAP NORMA KOMFORT – Dvojkrídlové – Sadrokartónová stena
Stavebné puzdro JAP NORMA KOMFORT (obložkové) pre dvojkrídlové posuvné dvere do sadrokartónovej steny o šírke prechodu 1650 mm a výškach 1970 mm alebo 2100 mm.
Pohyb dverí je synchronizovaný.
Puzdro je vyrobené z pozinkovaného plechu a je kompatibilné so všetkými výrobcami dverí (do max hmotnosti 90 kg).
Pohybový mechanizmus je veľmi tichý a je osadený do špeciálnej hliníkovej lišty. Horná kolajnica je odoberateľná.
Z ponuky je možné výbrať aj tichý doraz (tlmič nárazu dverí):
-
Doraz NORMA a LATENTE
Príslušenstvo v cene
-
1 x doplnok koľajnice
-
4 x dverný nosič
-
2 x vodiaci tŕň
-
4 x vozíček
-
4 x doraz
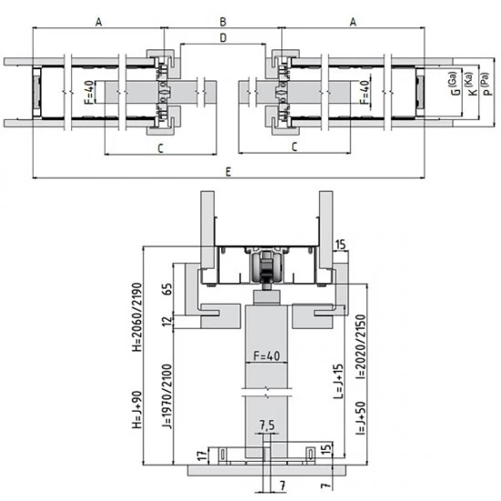
Vysvetlivky k obrázku
A Šírka plechovej kapsy
B Šírka priechodu po inštalácii stavebného puzdra
C Štandardná šírka dverného krídla
D Šírka čistého priechodu po osadení obložiek
E Celková šírka stavebného puzdra
F Maximálna hrúbka dverného krídla
G Vnútorný rozmer puzdra
H Celková výška stavebného puzdra
I Výška podlaha – koľajnica (kontrola osadenia na
dokončenú podlahu)
J Výška čistého priechodu po osadení obložiek
K Vonkajší rozmer stavebného puzdra
L Štandardná výška dverného krídla
P Minimálna hrúbka dokončenej priečky
Doprava:
- osobné vyzdvihnutie: prevádzka Ružomberok - 0€
- dovoz Ružomberok okres - 15€
- dovoz z Ružomberok do 50km - 25€
- dovoz z Ružomberok nad 50km - 35€
- dovoz z Ružomberok nad 100km - 45€
- Individuálna doprava - zavoláme vám späť
- Kuriér (podlahy) "obj. 200€+ doprava zdarma" - 15€
- Kuriér (kľučky, lišty, podlahové podložky, lepidlá, malorozmerný tovar) "obj. 200€+ doprava zdarma" - 12€
- Dobierka (+ 5€ k dostupnej doprave)
Platba:
- Platba v hotovosti
Tovar zaplatíte v hotovosti priamo na Vami vybranej predajni. Pre Vašu bezpečnost a ochranu môžete byť požiadaný o predloženie preukazu totožnosti.
- Platba prevodom
Po odoslaní košíku Vám bude na emailovú adresu doručená proforma faktúru s príkazom k úhrade. Túto faktúr zaplatíte z Vašeho účtu. Dodanie tovaru sa bude realizovať až po pripísaní platby na náš účet.
- Zálohová platba
Pri platbe v hotovosti aj bankovým prevodom máte možnost okrem plnej ceny zvoliť aj možnost zaplatenia zálohy vo výške 50% z kúpnej ceny. Doplatok vo výške 50% z kúpnej ceny môžete potom realizovať:
- v hotovosti na predajni pri prebratí tovaru
- v hotovosti (dobierka) pri dodaní tovaru
- prevodom na účet na základe vopred vystavenej faktúry vo výške 90%. Dodanie tovaru sa bude realizovať až po pripísaní platby na náš účet
Lingas, s.r.o., Sv. Anny 4787/1A, 034 01 Ružomberok - ZOBRAZIŤ NA MAPE
Lingas, s.r.o Google recenzie od našich zákazníkov - ZOBRAZIŤ
- Dodanie: Do týždňa
- Výrobca: JAP
- Model: LIN-639
- SKU: 00639
- MPN: 00639