Menu
Váš Košík

Stavebné puzdro JAP 730 NORMA PARALLEL dvojkrídlové 2050 mm (1970/2100 mm x 200 mm) - Sadrokartón

Stavebné puzdro JAP 730 NORMA PARALLEL dvojkrídlové 2050 mm (1970/2100 mm x 200 mm) - Sadrokartón
Stavebné puzdro JAP 730 NORMA PARALLEL dvojkrídlové 2050 mm (1970/2100 mm x 200 mm) - Sadrokartón
Stavebné puzdro JAP 730 NORMA PARALLEL dvojkrídlové 2050 mm (1970/2100 mm x 200 mm) - Sadrokartón
Stavebné puzdro JAP 730 NORMA PARALLEL dvojkrídlové 2050 mm (1970/2100 mm x 200 mm) - Sadrokartón

Stavebné Puzdro JAP NORMA PARALLEL – Dvojkrídlové – Sadrokartónová stena

Stavebné puzdro JAP NORMA PARALLEL (obložkové – zvárané) pre dvojkrídlové posuvné dvere do sadrokartónovej steny o šírke prechodu 2050 mm a výškach 1970 mm alebo 2100 mm.

Dve dverné krídla sa zatvarajú za sebou jedným smerom.

Pohyb dverí je synchronizovaný.

Puzdro je vyrobené z pozinkovaného plechu a je kompatibilné so všetkými výrobcami dverí (do max hmotnosti 90 kg).

Pohybový mechanizmus je veľmi tichý a je osadený do špeciálnej hliníkovej lišty. Horná kolajnica je odoberateľná.

Z ponuky je možné výbrať aj tichý doraz (tlmič nárazu dverí):

  • Doraz NORMA a LATENTE

Príslušenstvo v cene

  • 2 x doplnok koľajnice

  • 4 x dverný nosič

  • 2 x vodiaci tŕň ľavý

  • 2 x vodiaci tŕň pravý

  • 4 x vozíček

  • 4 x doraz

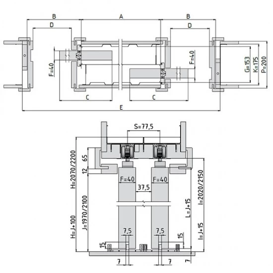
Vysvetlivky k obrázku

A Šírka plechovej kapsy

B Šírka priechodu po inštalácii stavebného puzdra

C Štandardná šírka dverného krídla

D Šírka čistého priechodu po osadení obložiek

E Celková šírka stavebného puzdra

F Maximálna hrúbka dverného krídla

G Vnútorný rozmer puzdra

H Celková výška stavebného puzdra

I Výška podlaha – koľajnica (kontrola osadenia na

dokončenú podlahu)

J Výška čistého priechodu po osadení obložiek

K Vonkajší rozmer stavebného puzdra

L Štandardná výška dverného krídla

P Minimálna hrúbka dokončenej priečky

Doprava:

  • osobné vyzdvihnutie: prevádzka Ružomberok - 0€
  • dovoz Ružomberok okres - 15€
  • dovoz z Ružomberok do 50km - 25€
  • dovoz z Ružomberok nad 50km - 35€
  • dovoz z Ružomberok nad 100km - 45€
  • Individuálna doprava - zavoláme vám späť
  • Kuriér (podlahy) "obj. 200€+ doprava zdarma" - 15€
  • Kuriér (kľučky, lišty, podlahové podložky, lepidlá, malorozmerný tovar) "obj. 200€+ doprava zdarma" - 12€
  • Dobierka (+ 5€ k dostupnej doprave)

Platba: 

  • Platba v hotovosti

Tovar zaplatíte v hotovosti priamo na Vami vybranej predajni. Pre Vašu bezpečnost a ochranu môžete byť požiadaný o predloženie preukazu totožnosti.

  • Platba prevodom

Po odoslaní košíku Vám bude na emailovú adresu doručená proforma faktúru s príkazom k úhrade. Túto faktúr zaplatíte z Vašeho účtu. Dodanie tovaru sa bude realizovať až po pripísaní platby na náš účet.

  • Zálohová platba

Pri platbe v hotovosti aj bankovým prevodom máte možnost okrem plnej ceny zvoliť aj možnost zaplatenia zálohy vo výške 50% z kúpnej ceny. Doplatok vo výške 50% z kúpnej ceny môžete potom realizovať:

  • v hotovosti na predajni pri prebratí tovaru
  • v hotovosti (dobierka) pri dodaní tovaru
  • prevodom na účet na základe vopred vystavenej faktúry vo výške 90%. Dodanie tovaru sa bude realizovať až po pripísaní platby na náš účet
Lingas, s.r.o., Sv. Anny 4787/1A, 034 01 Ružomberok - ZOBRAZIŤ NA MAPE
Lingas, s.r.o Google recenzie od našich zákazníkov - ZOBRAZIŤ
Stavebné puzdro JAP 730 NORMA PARALLEL dvojkrídlové 2050 mm (1970/2100 mm x 200 mm) - Sadrokartón
Výhodná Cena
Ak nájdete nižšiu cenu vybraného produktu, než akú ponúkame na našom e-shope, neváhajte nás kontaktovať.
  • Dodanie: Do týždňa
  • Výrobca: JAP
  • Model: LIN-653
  • SKU: 00653
  • MPN: 00653
890,16€
Bez DPH: 723,71€

Dostupné možnosti

(+116,85€)
890,16€
Bez DPH: 723,71€
Do košíka